北京永盛艺源工程设计有限公司

新闻详情

自然与城市相融合 为生活点亮文化明灯

发表时间:2021-12-13 08:00作者:永盛艺源


图片

唐冶新华书店

项目概况

项目地址:山东省 · 济南市

服务内容:

设计 / 施工 / 书架

北京永盛艺源工程设计有限公司


图片




唐冶古镇位于济南市历城区,是一个有着千年历史的古镇,保存了大量的明清建筑和文化遗产。这里有唐冶古桥、唐冶古街、唐冶古井等多个景点,是一个融合了历史、文化和旅游的综合性景区。


山东新华书店唐冶文化中心位于历城区唐冶中路以东、幼安街以北,其最大的亮点在于玻璃幕墙的设计。该设计采用竖向错叠的玻璃幕墙体系,形如“展开的书页”,成为建筑立面的主要形式。这种设计不仅增强了建筑的视觉效果,还展现了书店内部空间的通透性,体现出书店开放、充满活力的特点。

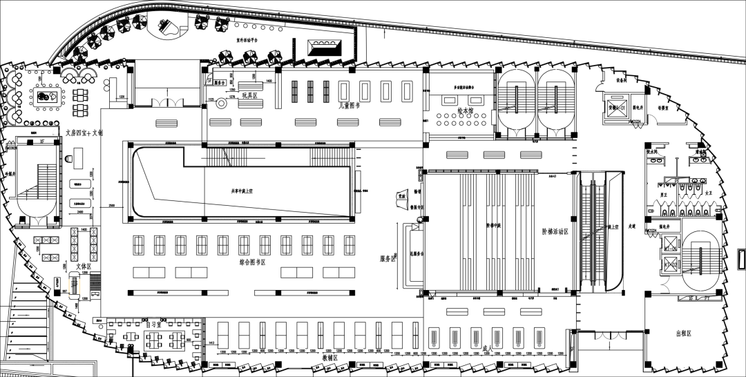
平面图

图片

内部展示

图片
图片

简洁但富有寓意的建筑表达,给城市市民提供可以联想的空间,并含蓄的体现了书店的文化内涵。竖向幕墙立面体系,提高整体空间的通透性,更好的展示书店建筑内部的空间,将书店开放活力的姿态完全的表达出来。

图片
图片

唐冶文化中心周边景观资源丰富,设计中加入大量树木、河流等自然元素可以营造出惬意、舒适的氛围,建立书店与景观环境之间有机的联系。让人感到放松和愉悦。为读者获得在自然中阅读的乐趣。

图片
图片

唐冶书院作为中国古代私塾文化的代表,是中国现存规模最大、保存最完整的明清私塾之一。在书院的建筑和布局中,体现了简约、自然的设计风格,营造出舒适、自然的学习环境。


同样地,唐冶书店的设计也体现这种理念,采用简约、自然的设计风格,营造出舒适、自然的阅读环境。不仅能够吸引读者,也能够提高阅读体验,让人们如同置身历史的长河中,感受文化的乐趣。

图片
图片

为了营造极具感染力的空间设计,从出发点着手,回归空间本质。结合地域人文元素,打造契合当地特色的差异化空间,展现独特的空间韵律。


同时,跳出表象,深挖地域人文特征,以历史底蕴作为空间精神载体,为颜值赋能。提取地域自然元素,多形式点缀装饰空间,角落艺术造型和饰品,处处带给人惊喜,出人意料展现,让人心情愉悦。






图片
图片

微信扫一扫
关注该公众号

分享到: