北京永盛艺源工程设计有限公司

新闻详情

把天地间的开阔旷远 流淌为空间上的疏朗空明

发表时间:2022-10-10 08:00作者:永盛艺源


图片

呼和浩特新华书店

项目概况

项目地址:内蒙古 · 呼和浩特

服务内容:设计 / 施工 / 书架

北京永盛艺源工程设计有限公司


图片



内蒙古是一个多民族、多文化的地区,拥有着深厚的文化底蕴和惊人的自然美景。在这个美丽的地方建一家特色书店,不但可以展示当地的文化传承和精神内涵,还能为读者提供独特的阅读空间和文化体验。


考量这座书店的独特个性,我们赋予它明晰的民族印记,在这里,天高云淡,草原苍茫,把天地间的开阔旷远,流淌为空间上的疏朗空明。

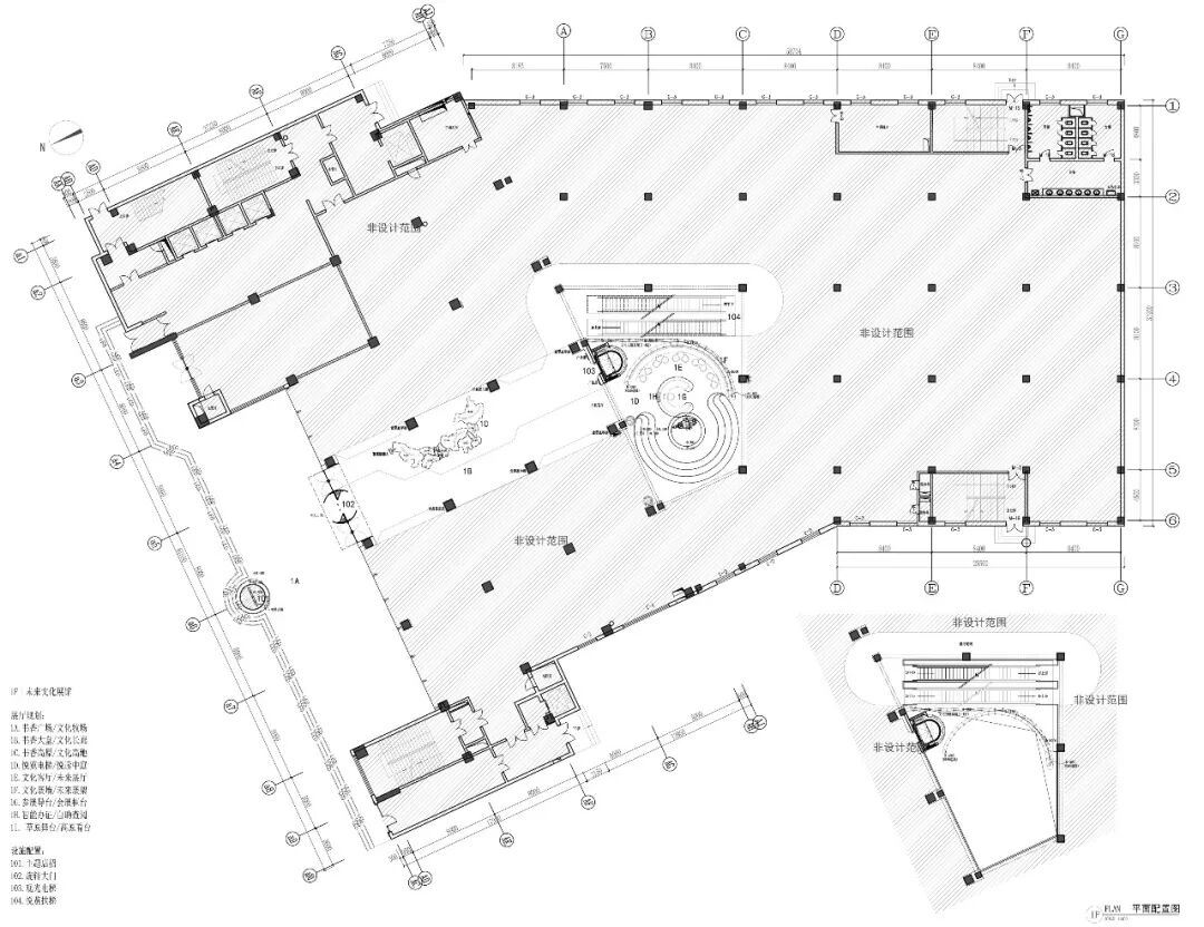
一层平面图

图片

内部展示

图片
图片

设计师在设计过程中充分考虑了当地的文化特色。书店外墙采用了大量传统的木色直棂隔窗,不仅具有美观的外观,还能够有效地隔绝外界的噪音和气温。


这种设计不仅符合内蒙古地区的气候特点,还呈现出一种原始而又充满生机的城市特色。

图片
图片
图片

进入书店,你会发现草原摄影作品结合蒙古族传统元素的装饰,让人可以在阅读的同时,感受到内蒙古的文化风情。书店内部采用了大量的木材和石材,营造出一种自然、朴素的氛围。

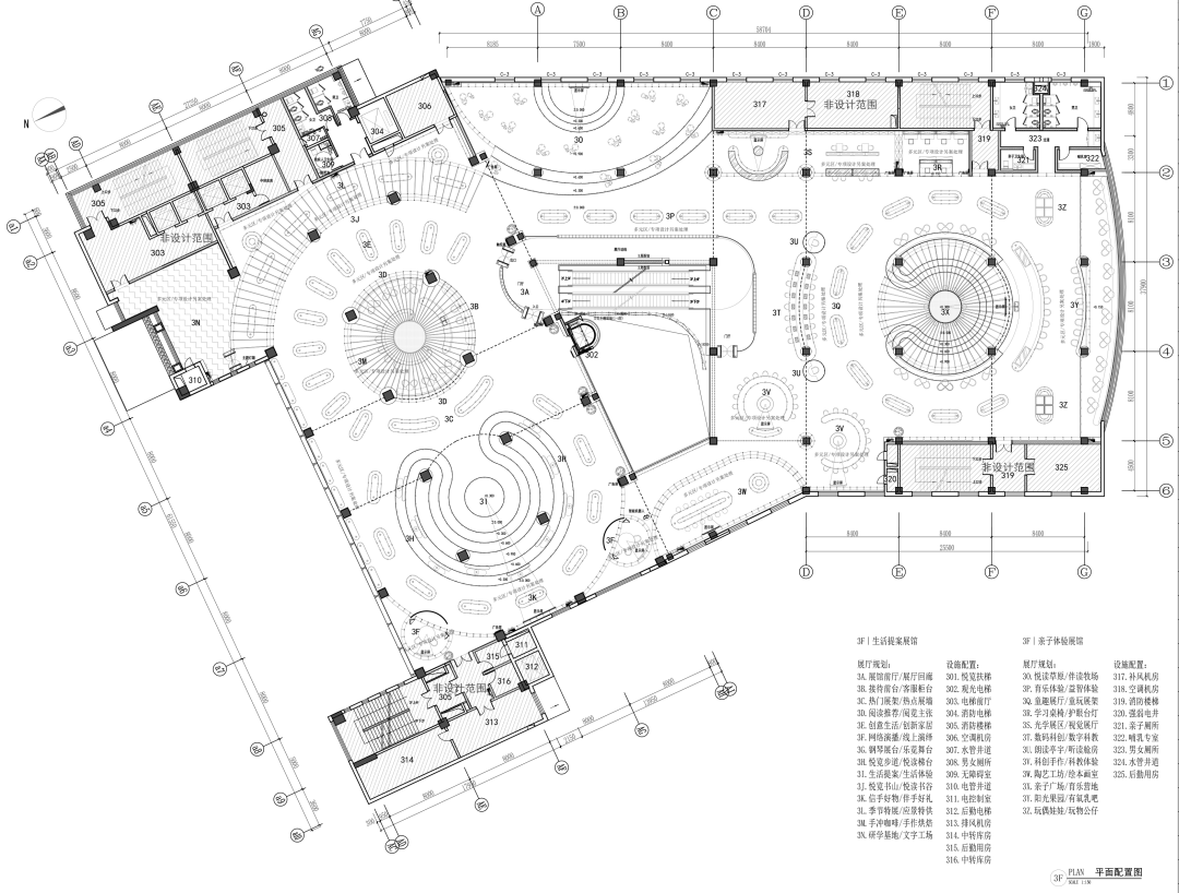
二层平面图

图片

内部展示

图片

草原摄影作品结合蒙古族传统图案的装饰,让人可以在阅读的同时,感受到内蒙古的文化风情。

图片

利用大面积的流线线条,创造开放通透的视野,呈现出草原上的开阔天地和苍茫云天。来营造亲切感和风格化特征,做到自然与人为的和谐共存。


圆形的书架和圆形的阅读区域,创造舒适且具有蒙古包特色的阅读区域,展示书籍的同时,为书店增加时代感和特色感。

图片
图片

巨大的圆形采光顶,让人想起了草原上的蒙古包。让整个空间看起来更加质朴自然,让人感觉仿佛置身于草原之中。为读者带来优质、独特、深度的阅读体验。






图片
图片

微信扫一扫
关注该公众号


分享到: